株式会社 グッドディール仙台
仙台及び近郊の賃貸情報、売買・管理等不動産のことなら、株式会社グッドディール仙台へ
メニュー
コンテンツへスキップ
トップページ
会社案内
賃貸物件情報
お問合せ
アクセス
トップ
›
賃貸物件情報
›
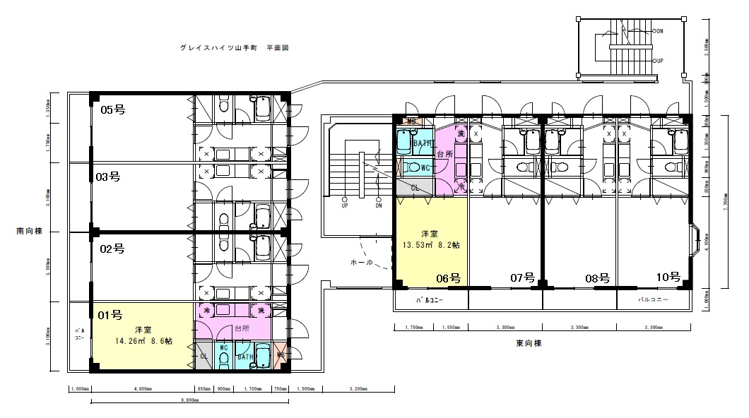
GH山手町
GH山手町
戻る